在酷暑和低至5℃的低温的范围内,都能运行
特别适合于别墅,地下室,度假村、博物馆等及其他需要保持一定的干燥度的 场合,是别墅地下室神器
去除潮湿水分
引进新风,引进新风时可以除湿
防止物品发生霉变
不占用地面空间
自动排除冷凝水
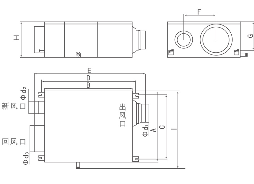
| 型号 | A | B | C | D | E | F | G | H | I | Φd1 | Φd2 | Φd3 |
| DXF-20 | 345 | 597 | 300 | 644 | 698 | 140 | 193 | 244 | 399 | 110 | 75 | 100 |
| DXF-30 | 403 | 703 | 360 | 751 | 890 | 170 | 224 | 275 | 454 | 150 | 100 | 150 |
| DXF-40 | 510 | 703 | 510 | 751 | 890 | 230 | 234 | 285 | 558 | 150 | 100 | 150 |
| DXF-50B | 550 | 656 | 503 | 704 | 838 | 240 | 223 | 275 | 599 | 150 | 100 | 200 |
| DXF-50/E | 487 | 856 | 526 | 540 | 1042 | 224 | 407 | 409 | 599 | 150 | 150 | 200 |
| DXF-80/E | 487 | 855 | 526 | 540 | 1023 | 224 | 407 | 409 | 599 | 250 | 150 | 250 |
| DXF-150 | 764 | 994 | 803 | 535 | 1158 | 320 | 494 | 496 | 853 | 310 | 200 | 310 |
| DXF-300 | 940 | 1146 | 978 | 714 | 1280 | 453 | 581 | 585 | 1031 | 360X310 | 250 | 360X310 |
| 型号 | 电源 | 风量(m3/h) | 功率(W) | 除湿量(L/D) | 静压(Pa) | 可引入新风量(m3/h) | 噪声dB(A) | 推荐使用面积(m2)层高2.8米 | 重量(kg) |
| DXF- 20 | 220V/50Hz | 200 | 265 | 14 | 40 | 0-70 | 40 | 15-35 | 22 |
| DXF-30 | 220V/50Hz | 300 | 380 | 21 | 50 | 0-100 | 43 | 30-60 | 30 |
| DXF-40 | 220V/50Hz | 400 | 515 | 35 | 80 | 0-120 | 43 | 45-80 | 35 |
| DXF-50B | 220V/50Hz | 500 | 600 | 42 | 50 | 0-150 | 45 | 60-100 | 40 |
| DXF-50/E | 220V/50Hz | 500 | 780 | 60 | 80 | 0-180 | 46 | 80-140 | 51 |
| DXF-80/E | 220V/50Hz | 800 | 980 | 80 | 100 | 0-250 | 48 | 100-180 | 54 |
| DXF-150 | 220V/50Hz | 1500 | 2500 | 200 | 200 | 0-500 | 56 | 300-500 | 80 |
| DXF-300 | 380V/50Hz | 3000 | 6000 | 410 | 250 | 0-100 | 60 | 600-1000 |
150 |